Karuizawa(NakaKaruizawaKita) Karuizawa Sengataki Villa Area Naka-ku (Property ID : 50481)
A 3BR detached house surrounded by trees with a beautiful view.
- Single Family Home
- Floor Plan:3 bedrooms
- JPY 43,000,000
Comments from sales rep
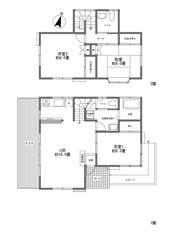
This detached house is located in the Naka Ward area of Karuizawa Sengataki Villa. The surrounding area has an unobstructed natural landscape, and you can enjoy beautiful seasonal scenery from the west-facing windows of the living, dining, and kitchen area.
Click to enlarge.
| Common Area |
|
|---|---|
| Preferences |
|
Property InformationView Cost Summary (management fee etc.)
| Address | Nagakura Karuizawa Town, Nagano | |
|---|---|---|
| Transportation | Approximately 10 minute-drive (about 4km) from "Nakakaruizawa" Station Shinano Railway Line | |
| Building Floor Area | 87.77m2 | |
| Land Area | 998.19m2 | |
| Land | Type of Ownership | Freehold |
| Area | (Registered record)998.19㎡(10,744.43 sqft) | |
| Building | Total Floor Area | (Registered record)87.77㎡(944.75 sqft)1st floor/51.34㎡(552.62 sqft)2nd floor/36.43㎡(392.13 sqft) |
| Completion | 1990/7 | |
| Structures | Wood construction with slate roofing, 2-story | |
| Common Area | - | |
| Facilities | Electricity | Chubu Electric Power Co., Inc. |
| Gas | LPG (Individual system) | |
| Water | Private water supply system | |
| Hot Water | Kerosene powered water heating system | |
| Drain | Septic tank (Individual system) | |
| Sewage | Septic tank | |
| Air Conditioner | - | |
| Car Park | Car space (3 cars) available | |
| Notes | *Part of the septic tank buried on the north side of the property crosses into the neighboring property. *There is a utility pole on the property.*Property is located in sediment disaster caution area (yellow zone).*Property was repaired in July 2023. | |
| Type of Transaction | Brokerage | |
| Handover | Present situation | In use |
| Delivery Date | Determined upon discussion | |
Details of expenses
Operating expenses (maintenance fee, etc.)
| Total Management Fee(monthly) | JPY - | |
|---|---|---|
- ※Utility charges will be billed separately.
Operating expenses (tax)
| Property tax (annual) | - | |
|---|---|---|
| Municipal tax | JPY 5,500 | |
One-time Fees upon purchasing
| Contract Stamp Fee | JPY 10,000 | |
|---|---|---|
| Brokerage Fee | JPY 1,485,000 | |
| Remarks | *Management is a voluntary contract. | |
- ※Contract Stamp Fee and Brokerage Fee are subject to change depending on the actual sales price.
- ※Property tax for the year of sale will be allocated to Seller and Buyer based on the delivery date.
- ※In addition to the above fees, there will be a registration fee.
- ※If the floor design provided on our website does not reflect the current conditions, the current conditions will be prioritized.
- ※Since there is no showroom, please contact us in advance for a site visit.
- ※All rights reserved. No photos or articles shall be used without prior permission.
Last Updated: November 30, 2025
Next Update: December 7, 2025
Form for inquiring
Handling of Personal Information
[1] Privacy Policy
Tokyu Resort Corporation (hereinafter referred to as the “Corporation”) considers the appropriate protection of personal information to be an important part of its business operations and will therefore use and manage customers’ personal information appropriately in accordance with the Act on the Protection of Personal Information and relevant laws, ordinances and guidelines, and with the following policies.
- (Internal System)The Corporation will determine internal regulations and rules necessary for each operation regarding the handling of personal information and the handling system, and practice the regulations and rules while making its officers and the other personnel thoroughly aware of them. In addition, the Corporation will maintain and continually improve upon this internal system.
- (Acquisition of Personal Information)When acquiring personal information from customers, etc., the Corporation will do so in an appropriate manner according to laws and ordinances after indicating the purpose of use to customers, etc.
- (Use of Personal Information)When using the personal information of customers, etc., the Corporation will do so to the extent of the purpose of use in accordance with laws and ordinances and will not use it for any other purpose beyond the use purpose.
- (Joint Use of Personal Information) It should be noted that the companies of Tokyu Fudosan Holdings Group, etc. may jointly use the personal information acquired from customers, etc.
- (Limitation on Provision of Personal Information to Third Parties)
The personal information which the Corporation acquires will be provided under appropriate procedures to third parties to the extent necessary to achieve the purpose of use and in the following cases:
(1) the case where prior consent has been obtained from customers, and
(2) the case where provision of personal information to third parties without customers’ consent is permitted under laws and ordinances. - (Disclosure, Correction, Addition, Deletion, Cessation of Use, or Elimination of Personal Information) When any customers, etc. request disclosure, correction, cessation of use, etc. of their personal information held by the Corporation, the Corporation will make identity verification of the requesters and then appropriately respond to the request in accordance with laws, ordinances, etc.
- (Ensuring Accuracy) The Corporation will take appropriate measures to maintain the accuracy of the personal information of customers, etc. and keep it current.
- (Security Management Measures) The Corporation will take appropriate security management measures against unauthorized access, loss, destruction, falsification, leak, etc.
- (Supervision of Contractors) The Corporation may entrust the handling of personal information to third-party contractors to the extent necessary to achieve the purpose of use. In such case, the Corporation will conduct necessary and appropriate supervision over the contractors in accordance with laws, ordinances, etc.
- To conduct business activities (such as visits, dispatch of direct mail, solicitation or contact by telephone, e-mail or other means, and advertisement) and to conduct clerical works, etc. concerning contracts, regarding the following businesses:
(1) The sale, purchase and lending of land and buildings, the brokerage thereof, and the management of land and buildings
(2) The business regarding the sale and purchase of the membership of members-only hotels, golf clubs, tennis clubs, etc.
(3) The management of sports facilities, such as golf courses, tennis courts, etc.
(4) The general lease businesses
(5) The planning, production and sale of magazines on real estate and leisure information
(6) The provision of information on the use of leisure facilities
(7) The sale of furniture, household electric appliances, interior ornaments, art and craft works, convenience goods and sports goods, and the brokerage thereof
(8) The service for collecting, managing, processing and providing information by the use of the internet
(9)The real estate market research on the demand for and supply of houses, and the market research on the trends in consumers’ awareness of the tourism and leisure industries
(10) The non-life insurance agency businesses and the sale of life insurance
(11) Any business incidental or related to the businesses described in any of the items above
* With respect to the above-mentioned businesses, addition, change or abolition may be done. - To utilize the information for the survey/analysis concerning the businesses mentioned in item 1 above, such as customer trends analysis or customer satisfaction survey; for development of goods; or for measures to improve customer satisfaction
- To conduct after-sales service for customers who have made contracts with the Corporation
- To inform customers of information on goods, services, etc. of the Corporation and companies associated with the Corporation by online media (e.g., e-mails and web screens) and by mail
- To perform and exercise the obligations and rights of the Corporation and take any actions incidental thereto
- To provide the information to third parties to the extent necessary to achieve any of the purposes of items 1 to 5 above
- Any purposes other than the purposes described above may be indicated separately for the respective businesses described in item 1 above. In such case, the purposes shall constitute the purpose of the Corporation’s use of personal information in addition to the purpose of use.
- Items of personal information which may be used jointly
All personal information acquired by the Corporation including name, address, date of birth, age, gender, telephone number, e-mail address, etc. - Scope of the entities that will use information jointly
The companies of Tokyu Fudosan Holdings Group - Purpose of use for joint users
(1) Same as provided in “1. Purposes of Use of Personal Information”
(2) To use for businesses, business activities (*1), and customer trends analysis, etc. (*2) conducted by the companies of Tokyu Fudosan Holdings Group as described in item 2 above
*1 “Business activities” mean business activities, such as visits, dispatch of direct mail, solicitation by telephone, e-mail or other means, and advertisement.
*2 “Customer trends analysis, etc.” mean survey/analysis, such as customer trends analysis, and customer satisfaction survey; development of goods; and measures to improve customer satisfaction. - Name, address and representative of the entity responsible for management of personal information
Tokyu Resort Corporation
Address of the Corporation and name of representative - Contact information of the responsible entity for management of personal information
The Administration Department of the Corporation acts as the responsible entity. If you have any questions, please contact us using the above Contact Form. - By using cookies and other tracking techniques (e.g. web beacons), the Corporation acquires data (hereinafter referred to as “cookie information”) related to users’ access history and usage status (including identifiers, such as IP addresses) on this website and part of the websites of the companies of Tokyu Fudosan Holdings Group. The cookie information may include data acquired by third parties.
Cookies are based on a mechanism where upon use of a webpage, part of the data exchanged between the browser and the web server (such as data input and access history) are stored as a file in users’ computers. - The Corporation uses acquired cookie information for the below-mentioned purposes of use.
- To provide input assistance on websites, smartphone applications, etc.
- To customize content deliveries and advertisement display, based on the contents which interest customers and on the usage status on the Corporation’s website
- To use the information as statistical data in non-identifying form - When prior consent has been obtained from customers, the Corporation may link cookie information to the personal information of customers held by the Corporation. Cookie information linked to personal information will be used not only for the above-mentioned purposes, but also for the purposes described in the item “Purposes of Use of Personal Information”. Use of cookie information linked to personal information will be administered appropriately in accordance with the privacy policy of the Corporation’s website.
- Advertisements of the Corporation are posted on various internet sites by third-party distribution enterprises, including Google.
- Using cookies, the third-party distribution enterprises, including Google, distribute ads of the Corporation on the basis of the past access information to the Corporation’s website.
- Users can access the opt-out page of Google Ads to disable the use of cookies by Google. (Alternatively, customers can access the opt-out page of Network Advertising Initiative to disable the use of cookies by third-party distribution enterprises.)
- Establishment and maintenance of regulations governing the handling of personal information
Rules for handling personal data (“personal data” means personal information that the Corporation has acquired or is to acquire, including that which is planned to be handled as personal data; hereinafter the same shall apply in these “Safety Management Measures”), including the acquisition, use, storage, provision, deletion, and disposal of personal data, as well as for responsible persons such as personal information managers, etc., are stipulated in the Personal Information Protection Rules and other information management provisions. - Security Management Measures from Organizational Viewpoint
- The Corporation assigns managers in charge of the handling of personal information, and clearly defines the range of persons who handle personal data, and the range of personal data handled by such persons.
- The Corporation exerts itself to manage personal data properly by making internal inspections on the handling of personal data. Further, the Corporation has established a reporting system which is to be operated when incidents or accidents, such as leak, theft, loss, etc. of personal data, have occurred or appear to have occurred, and has been operating the system. - Security Management Measures from Human Viewpoint
The Corporation has its employees take training regularly, and the Employment Regulation has stipulations concerning protection of secret. - Security Management Measures from Physical Viewpoint
The Corporation takes preventive measures against theft, loss, etc. of equipment and electronic media for handling personal data, and of documents containing personal data.
Further, when equipment or electronic media for handling personal data, or documents containing personal data are disposed of, the Corporation takes preventive measures against recovery of the personal data. - Security Management Measures from Technical Viewpoint
With respect to access control, the range of persons who are permitted to use the information system for handling personal data bases, etc. is restricted to those who have a user ID which is granted access to the information system. Thus, the Corporation identifies and authenticates the persons who make access to personal data bases, etc.
The Corporation has established a protective system against unauthorized access or malware from the outside.
The Corporation regularly verifies the security of the information system for handling personal data and takes preventive measures against leak of personal data which occurs during the use of the information system. - Comprehension of Foreign Situation
The Corporation takes security management measures, based on the comprehension of the systems for protection of personal information in the following region and countries:
Hawaii, Australia, Malaysia and the Philippines.
* The above description is current as of April 2024.
[2] Purposes of Use of Personal Information
The Corporation will use the personal information which it acquires, for the below-mentioned purposes of use.
[3] Joint Use of Personal Information
The personal information acquired from customers, etc. may be jointly used, as described below.
[4] Use of Cookies
[5] Remarketing by Online Advertisement
[6] Security Management Measures
For security management of personal information, the Corporation takes the following measures.
[7] Procedures for Requesting the following: Notice of Purpose of Use, Disclosure of Personal Information, or Disclosure of Record of Provision of Information to Third Parties (Hereinafter Referred to Generically as “Disclosure of Information”)
Upon the request of the relevant person who is the subject of the information, that person’s request for disclosure of information will be dealt with according to the following method:
(1) For the disclosure of the information, the relevant person shall contact us using the above Contact Form and make a request therefor by filling out the designated request form (request for disclosure of personal information) sent by the Corporation and sending it accompanied by copies of official evidence, such as a residence certificate, a driver’s license, etc.
(2) For the disclosure of the information, the relevant person must pay a fee of 1,000 yen. The relevant person is requested to enclose a postal order for 1,000 yen when sending the request for disclosure.
(3) It will take at least two (2) weeks from the receipt of the request for disclosure until an answer thereto is provided. The answer will be sent to the address of the relevant person in writing by mail.
(4) If it is judged that disclosing the information would hinder the business operations of the Corporation or in other cases, the disclosure of the information may be limited.
[8] Procedures for Requesting Correction, Addition, Deletion (Hereinafter Referred to Generically as “Correction, Etc.”), Cessation of Use, or Cessation of Provision to Third Parties, of Personal Information
Upon the request of the relevant person who is the subject of the information, a request for correction, etc. of the personal information, a request for cessation of use of the personal information, or a request for cessation of the provision of the personal information to a third party will be dealt with according to the following method:
(1) To request the correction, etc., the cessation of use, or the cessation of the provision to a third party of the personal information, the relevant person shall notify us using the above Contact Form. The Corporation will accept it after verifying the identity of the relevant person. If the identity of the relevant person cannot be verified, the request may be refused.
(2) If it is judged that accepting the request would hinder the business operations of the Corporation or in other cases, the correction, etc., the cessation of use, or the cessation of the provision to a third party of the personal information may be limited to the extent not in violation of laws and ordinances.
Protection of Specific Personal Information
Basic Policy on the Proper Handling of Specific Personal Information
Tokyu Resort Corporation (hereinafter referred to as the “Corporation”) as an organization will promote the below-mentioned initiatives in order to ensure the proper handling of the Individual Number and the Specific Personal Information (*) (hereinafter referred to as the “Specific Personal Information, etc.”) based on the “Act on the Use of Numbers to Identify a Specific Individual in the Administrative Procedure” (hereinafter referred to as the “My Number Act”).
- (Name of Business Operator)
Tokyu Resort Corporation - (Compliance with Related Laws, Ordinances, Guidelines, etc.)
In the handling of specific personal information, the Corporation will comply with the My Number Act, other related laws, ordinances, guidelines (such as the Rules Determined by the Specific Personal Information Protection Commission), etc. - (Matters Concerning Security Management Measures)
For the purpose of proper management of specific personal information to prevent leak, loss and destruction thereof, the Corporation will separately establish and will comply with the “Rules on the Protection of Specific Personal Information”, etc. - (Continual Improvement)
The Corporation will continually review and improve the Rules on the Protection of Specific Personal Information as well as the internal system for implementing the Rules so as to ensure that the Rules and the internal system are managed effectively and properly in a sustainable manner.
* "Specific personal information" means personal information containing the individual number (so-called "My Number").
Security Policy
Tokyu Resort Corporation (hereinafter referred to as “Tokyu Resort”) fully recognizes the importance of the personal information of customers using the Tokyu Resort website (http://www.tokyu-resort.co.jp) and pays close attention in handling the personal information of the customers. The Tokyu Resort Security Policy as described hereinafter is an explanation of Tokyu Resort’s policy and handling method which are applied to the personal information of the customers.
Tokyu Resort would like all users of the Tokyu Resort website to read this Security Policy.
Tokyu Resort presumes that all customers using the Tokyu Resort website have agreed with this Security Policy.
Use of SSL (Secure Socket Layer) (Encryption Communication)
The Tokyu Resort website uses “SSL” for protecting the personal information of customers using the website. The personal information (such as name, address, and telephone number) entered by the customers will be encrypted automatically at the time of transmission. Therefore, even if, by any chance, the transmitted data are intercepted by a third party, there is no concern that the content of the data would be stolen.
Use of Cookies
At the Tokyu Resort website, information called “cookies” may be transmitted to the customers’ computers to provide services for the customers browsing the website and to verify traffic information. The cookie information will be stored on the hard disk or in the memory of the customers’ computers. The cookie information will be used exclusively for marketing analysis of the Tokyu Resort website and for providing various services and, therefore, the security of the customers will not be infringed on. It is possible to disable the cookie function by making appropriate changes to the settings of the customers’ browser; however, when the cookie function is disabled, the customers may become incapable of using the Tokyu Resort website or all or part of the services provided by the website.
Use of JavaScript
The Tokyu Resort website uses JavaScript for making the website more convenient for the customers. Under an environment where JavaScript is unavailable or when JavaScript is disabled, the website pages may be displayed in unexpected manner.
Log File
The Tokyu Resort website collects information (such as IP address, browser type, reference URLs, and time) from the log file. The information collected from the log file will be used for the website trend analysis, the website management, the monitoring of user trend, etc. The information collected from the log file will not be reflected in the personal information.
Image File
The Tokyu Resort website may use image files (Clear Gif files) for aggregating the number of user access, and inspecting the utilization state. Information collected using the image files may be used as statistical information, but personal identification information will never be included in the statistical information.
Links
The Tokyu Resort website contains links to outside websites. However, Tokyu Resort is not liable for the content of the privacy policy, etc. of the outside websites.
Revision of Security Policy
Tokyu Resort may revise the content of the security policy. When an important change has been made in the content of the security policy, the change will be notified to the customers on the Tokyu Resort website.
Contact information for this property(property ID:50481)
International Sales Department
| Business hours | 9:30 am - 6:00 pm (Japan Time) |
|---|---|
| Closed | Every Saturday and Sunday |
| Address | Shibuya Dogenzaka Tokyu Building, 1-10-8, Dogenzaka, Shibuya-ku, Tokyo, 150-0043 |
| Minister of Land, Infrastructure, Transport, and Tourism (8) 4195, The Association of Real Estate Agents of Japan, Real Estate Fair Trade Council, |
International Sales Department
- Business hours:
- 9:30 am - 6:00 pm (Japan Time)
- Closed:
- Every Saturday and Sunday
















