マンション
全体概要軽井沢(南軽井沢) リベライン軽井沢 Aウィング
軽井沢の深緑広がる、落ち着きのある瀟洒なマンション
各画像をクリックすると大きく表示されます。
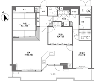
| 施設 |
|
|---|
物件概要
| 所在 | 長野県北佐久郡軽井沢町大字長倉字山の神 | |
|---|---|---|
| 交通 | 北陸新幹線「軽井沢」駅下車、車約12分(約4.9km) | |
| 土地 | 敷地面積/(公簿)14,101.43m2(4,265.68坪) | |
| 管理 | 分譲会社 | 興和不動産(株) |
| 施工会社 | 佐藤工業(株) | |
| 管理会社 | (株)東急コミュニティー | |
| 管理形態・方式 | 全部委託・通勤/日勤 | |
| 建物 | 総戸数 | 147戸 |
| 構造 | 鉄筋コンクリート造スレート葺3階建 | |
| 建築 | 1991年7月 | |
| 設備 | 電気 | 中部電力(株) |
| ガス | 無し/オール電化 | |
| 水道 | 敷地内井戸 | |
| 給湯 | 電気温水器 | |
| 排水・汚水 | 集中浄化槽 | |
| エレベーター | 1基 | |
| 駐車場 | 81台/無料 | |
| 備考 | テレコントロールシステム・BS受信可能 | |
| 制限 | 都市計画法 | 都市計画区域内非線引区域 |
| 用途地域 | 第1種住居地域・第1種高度地区・日影規制 | |
| 施設 | ●他施設/コインランドリー室・オートベンダーコーナー・スキーロッカールーム | |
- ※このハウジングマップの内容と現況が異なる場合は現況優先となります。
- ※オープンルームではございませんので見学ご希望の方は、事前に弊社担当までご連絡下さい。
- ※当社ホームページに掲載の記事・写真の無断転載を禁じます。全ての内容は著作権法により保護されています。
- ※ペット可の物件について、ペットの種類等は、マンションごとに異なります。詳細につきましては、各店舗までお問い合わせください。
最終更新日:2026年04月04日
このマンションの販売物件一覧
マップ
この物件へのお問い合わせ
| (一社)不動産流通経営協会会員・(公社)首都圏不動産公正取引協議会加盟・国土交通大臣(8)第4195号 |










