新着蓼科・八ヶ岳(蓼科) 東急リゾートタウン蓼科あかまつ台(管理No.:50561)
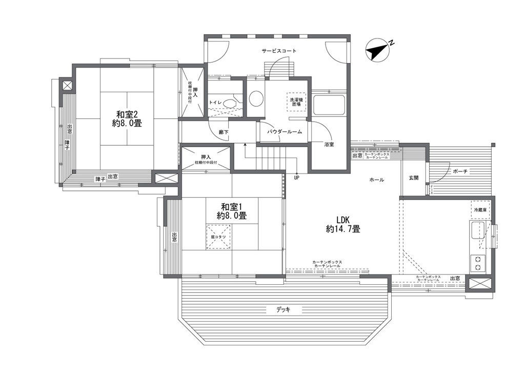
遠景に八ヶ岳の稜線を望む、木立に囲まれた2LDK平家建。
- 一戸建て別荘
- 間取り:2LDK
- 490万円
担当者のオススメポイント
標高約1600mの冷涼な気候。約14.7畳のLDKは、勾配天井で開放感があります。
各画像をクリックすると大きく表示されます。
| 施設 |
|
|---|---|
| こだわり条件 |
|
物件概要費用詳細を見る(管理費など)
| 所在 | 長野県茅野市北山字鹿山 | |
|---|---|---|
| 交通 | JR中央本線「茅野」駅下車、車約41分(約21.3km) 中央自動車道「諏訪」I.C.より、車約46分(約23.2km) |
|
| 土地 | 権利形態 | 転借権 |
| 面積 | (実測)1,035.05m2(313.10坪) | |
| 借地権残存期限 | 2027年12月31日まで※借地期限の更新は可能 | |
| 建物 | 延床面積 | (公簿)70.59m2(21.35坪) 1階面積/70.59m2(21.35坪) |
| 備考 | - | |
| 建築 | 1987年7月 | |
| 構造 | 木造ルーフィング葺平家建 | |
| 施設 | ●レストラン ●温泉大浴場 ●蓼科東急ゴルフコース(メンバーシップ・18ホール) ●テニスコート ●蓼科東急スキー場 ●他施設/・蓼科東急ホテル・会員制リゾートホテル(3棟)・東急バケーションズ蓼科・蓼科タウンペンション・タウンセンター(管理事務所)・トレッキングコース【シーズン営業】・パターゴルフ・バーベキューガーデン・アスレチック・キッズパーク・卓球・釣り(渓流・釣堀)・ドッグラン※施設利用については一部を除き有料となります。詳細はお問合せください。(別荘地内施設を含む) |
|
| 設備 | 電気 | 中部電力(株) |
| ガス | LPガス個別方式 | |
| 水道 | 私営水道:東急不動産(株)専用水道 | |
| 給湯 | ガス給湯器 | |
| 排水・汚水 | 集中汚水処理 | |
| 冷暖房 | - | |
| 駐車場 | カースペース(1台)有 | |
| 注記 | ※東急リゾートタウン蓼科は、土砂災害警戒区域・土砂災害特別警戒区域に指定されています。 ※リフォーム・補修等内容は別紙「リフォーム・補修等工事説明書」を参照ください(2024年4月実施)。 ※温泉詳細はお問合せください。 |
|
| 取引態様 | 媒介 | |
| 引渡 | 現況 | 利用中 |
| 引渡 | 相談 | |
費用詳細
ランニングコスト(管理費等)
| 管理費等(月額換算) | 25,691円 | |
|---|---|---|
| 内訳管理費 | 78,100円(税込)/年額 | |
| 上水道基本料 | 39,600円(税込)/年額 | |
| 下水道利用料 | 45,320円(税込)/年額 | |
| 借地料 | 114,890円(非課税)/年額 | |
| CATV | 30,360円(税込)/年額 | |
- ※水道光熱費については別途要
ランニングコスト(税金)
| 固定資産税(年額)※1 | 15,200円(概算) | |
|---|---|---|
| 都市計画税(年額)※1 | 2,100円(概算) | |
| 備考 | 市県民税4,500円/年額※別荘利用・個人名義の場合 | |
その他にかかる費用
| 契約印紙代(購入時1回) | 1,000円 | |
|---|---|---|
| 仲介手数料(購入時1回) | 330,000円 | |
| 登録免許税(購入時1回)※1 | 47,000円(概算) ※ローンをご利用の場合には抵当権設定の費用が発生します。 | |
| 不動産取得税(購入後1回)※1 | 43,600円(概算) ※購入後約3~4ヶ月後に直接、都道府県税事務所より請求が届きます。 | |
| 備考 | 預り金等(成約時残高精算)/507,000円(不課税)/一時金●名義変更料(別途要)/110,000円(税込)/一時金 ●その他印紙代(購入時1回)/400円※土地及び一戸建で2区画以上の場合、1区画ごとに400円が必要となります●借地期限更新時事務手数料/110,000円(税込:別途要)●更新時登記費用(別途要)●ガス代・電気代(別途要)●CATV一時停止中(再開手数料別途要) | |
- ※契約印紙代・仲介手数料については、表示価格から算出しております。実際の取引時には異なる場合がございます。
- ※別途、不動産登記時に、司法書士報酬等が約7万円~必要となります。
- ※別途、管理費や固定資産税等は引渡日を起算に売主と買主で清算をいたします。
- ※町(市・村)県民税等については、個人・別荘利用の場合で記載しております。法人名義や定住の場合は金額が異なります。
-
(※1)の税額については、2025年度の固定資産評価額から、別荘利用・個人名義の場合で算出した概算費用です。
定住利用・セカンドハウス利用の場合には軽減措置が適用される場合がございます。(セカンドハウスの軽減措置について)
- ※このハウジングマップの内容と現況が異なる場合は現況優先となります。
- ※オープンルームではございませんので見学ご希望の方は、事前に弊社担当までご連絡下さい。
- ※当社ホームページに掲載の記事・写真の無断転載を禁じます。全ての内容は著作権法により保護されています。
最終更新日:2025年11月16日
次回更新予定日:2025年11月23日
インターネットからの資料請求
- ① 必須項目を入力
- ② 入力確認
- ③ 完了
上記物件の資料請求・お問合わせは、下記フォームに必要事項をご入力の上、「当社個人情報の取り扱いについて同意する」をチェック後、「確認画面へ進む」ボタンを押して下さい。個人情報の送信は、SSL暗号化通信により保護されております。
当社の「個人情報のお取り扱いについて」及び「セキュリティーポリシー」はページ下部をご確認ください。
「個人にてご検討」「法人にてご検討」のいずれかをお選びのうえ、必要事項を入力してください。
個人情報の取り扱いについて
個人情報の取り扱いについて
東急リゾート株式会社では、お客様のプライバシーを尊重し、お客様の個人情報を大切に保護することを重要な責務と考え、個人情報保護に関する法令を遵守するとともに、個人情報の取り扱いに関し以下の事項を定めています。
- 【1】個人情報保護ポリシー
-
東急リゾート株式会社(以下「当社」という)は、個人情報を適切に保護することを事業運営上の重要事項と位置づけ、個人情報保護法その他関係法令及びガイドライン並びに以下の方針に基づき、お客様の個人情報の適正な利用及び管理をいたします。
- (社内体制)当社は個人情報の取り扱いおよびシステムに関して、社内規程および業務毎に必要なルールを策定し、これを当社役職員その他関係者に周知徹底させて実施致します。また、これを継続的に維持し改善をしてまいります。
- (個人情報の取得)当社がお客様等から個人情報を取得する場合には、利用目的を明示したうえで、法令に則って適正に取得いたします。
- (個人情報の利用)当社がお客様等の個人情報を利用するにあたっては、利用目的の範囲内で法令に則って適正に利用することとし、その目的の範囲を超えた利用はいたしません。
- (個人情報の共同利用)当社は、お客様等より頂いた個人情報については東急不動産ホールディングスグループ各社等の間にて共同利用させて頂く場合がございます。
- (第三者提供の制限)当社が取得した個人情報は、利用目的の達成上必要であって、かつ以下の場合に適切な手続きを実施して第三者へ提供します。
(1)予めお客様からのご同意を得ている場合
(2)法令上、ご本人の同意なく第三者提供が可能な場合 - (個人情報の開示・内容の訂正・追加又は削除・利用の停止・消去)当社は、ご本人から当社が保有する個人情報について、開示・訂正・利用停止等の求めがあったときは、ご本人確認のうえ、法令等に基づいて適切に回答いたします。
- (正確性の確保) 当社は、お客様等の個人情報を正確かつ最新の状態に保つよう、適切な措置を講じます。
- (安全管理措置)当社は、不正アクセス・紛失・破壊・改ざん・漏洩等を防止するために適切な安全管理措置を講じます。
- (委託先の監督)当社は、利用目的の達成に必要な範囲において個人情報の取扱いを第三者に委託することがあります。この場合、当社は、法令等に基づいて委託先に対する必要かつ適切な監督を行います。
- 【2】個人情報の利用目的
-
当社は以下の利用目的に従い、取得した個人情報を利用します。
- 下記事業に関し、訪問、ダイレクトメールの発送、電話及び電子メールその他の方法による勧誘・連絡、広告等の営業活動並びに契約に関連した事務手続き等を行うため。
- (1) 土地建物の売買、賃貸およびそれらの仲介並びに管理
- (2) 会員制ホテル、ゴルフクラブ、テニスクラブ等の会員権の売買に関する業務
- (3) ゴルフ場、テニスコート等スポーツ施設の経営
- (4) 総合リース業
- (5) 不動産、レジャーに関する情報誌の企画制作並びに販売
- (6) レジャー施設の利用に関する情報の提供
- (7) 家具、家庭用電化製品、室内装飾用品、美術工芸品、日用雑貨、スポーツ用品の販売 および斡旋
- (8) インターネットを利用した情報の収集、管理、処理、提供の各サービス業務
- (9) 住宅の需給関係に関する不動産市場並びに観光、レジャー産業に対する一般消費者意識の動向に関する市場調査
- (10) 損害保険代理業および生命保険の募集に関する業務
- (11) 前各号に附帯または関連する一切の業務 *上記事業については、追加・改廃される場合がございます。
- 上記1の各事業に関する市場動向分析、顧客満足度調査等の調査分析及び商品開発並びに顧客満足度向上施策に利用するため。
- 当社とご契約頂いたお客様に、アフターサービスを実施するため。
- 当社または提携する会社の商品、サービス等の情報をメールウェブ画面等のオンライン、郵便によりご案内するため。
- 当社の義務の履行及び権利の行使、及びこれに付随する諸対応のため。
- 上記1から5の各目的達成に必要な範囲で第三者に提供するため。
- 上記以外の目的を、上記1の各業にて個別に明示する場合があります。その場合、本利用目的と合わせて当社の個人情報利用目的とさせて頂きます。
- 下記事業に関し、訪問、ダイレクトメールの発送、電話及び電子メールその他の方法による勧誘・連絡、広告等の営業活動並びに契約に関連した事務手続き等を行うため。
- 【3】個人情報の共同利用
-
当社は、取得した個人情報を以下のとおり共同利用させていただく場合がございます。
- 共同して利用する個人情報の項目
氏名・住所・生年月日・年齢・性別・電話番号・電子メールアドレス、その他当社が取得した一切の情報 - 共同して利用する者の範囲
東急不動産ホールディングスグループ企業 - 利用する者の利用目的
(1)「1.個人情報の利用目的」記載の利用目的
(2)上記2.記載の東急不動産ホールディングスグループ企業が行う事業、営業活動(※1)及び市場動向分析等(※2)に利用するため
※1営業活動とは訪問、ダイレクトメールの発送、電話及び電子メールその他の方法による勧誘、広告等の営業活動をいいます。
※2市場動向分析等とは市場動向分析、顧客満足度調査等の調査分析及び商品開発並びに顧客満足度向上施策をいいます。 - 個人情報の管理について責任を有する者の名称、住所及び代表者氏名
東急リゾート株式会社
住所及び代表者氏名はこちらからご確認ください。 - 個人情報管理責任者・窓口の連絡先
当社経営管理部を個人情報管理責任者としますが、後記記載のお問合せ窓口を受付窓口といたします。
- 共同して利用する個人情報の項目
- 【4】Cookieについて
-
- 当社は、クッキー(Cookie)およびその他のトラッキング技術(例えばWebビーコン)を使用して、IPアドレス等の識別子を含む、お客様の当ウェブサイト及び当社グループウェブサイトの一部におけるアクセス履歴および利用状況に関する情報(以下、クッキー情報といいます)を利用しております。このクッキー情報には、第三者が取得したものが含まれます。
クッキーとは、ウェブページを利用したときにブラウザとサーバーとの間で送受信した入力内容や利用履歴などの一部をお客様のコンピューターにファイルとして 保存しておく仕組みです。 - 当社は、クッキー情報を以下の目的で利用いたします。
・ウェブサイトやスマートフォンアプリ等における各種入力補助のため
・お客様が興味を持っている内容や当社ウェブサイト上での利用状況をもとに、各種コンテンツ配信及び広告表示をカスタマイズするため
・個人を特定できない状態で、統計資料として利用するため。 - 当社は、お客様から同意を取得した上、クッキー情報を当社が保有するお客様の個人情報と紐づける場合があります。当社は、個人情報と紐づけたクッキー情報を、上記目的の他、「個人情報の利用目的」に記載の目的で利用いたします。また、個人情報と紐づけたクッキー情報を使用する際には当社ウェブサイトの個人情報保護方針に基づいて適切に管理いたします。
- 当社は、クッキー(Cookie)およびその他のトラッキング技術(例えばWebビーコン)を使用して、IPアドレス等の識別子を含む、お客様の当ウェブサイト及び当社グループウェブサイトの一部におけるアクセス履歴および利用状況に関する情報(以下、クッキー情報といいます)を利用しております。このクッキー情報には、第三者が取得したものが含まれます。
- 【5】オンライン広告でのリマーケティングについて
-
Google を含む第三者配信事業者によりインターネット上のさまざまなサイトに当社の広告が掲載されています。
Google を含む第三者配信事業者は Cookie を使用して、当ウェブサイトへの過去のアクセス情報に基づいて広告を配信します。
ユーザーは Google 広告のオプトアウト ページにアクセスして、Google による Cookie の使用を無効にできます(または、Network Advertising Initiativeのオプトアウト ページにアクセスして、第三者配信事業者による Cookie の使用を無効にできます)。
- 【6】安全管理措置
-
当社は、個人情報の安全管理のため以下の措置を講じています。
- 個人情報の取扱いに係る規定の整備
個人情報保護規則他情報管理規程等において、個人データ(当社が取得し又は取得しようとしている個人情報であって、個人データとして取り扱われることが予定されているものを含み、以下安全管理措置に関して同様とします。)の取得、利用、保存、提供、削除、廃棄等における取り扱いルール、また個人情報管理責任者等の責任者を規定しています。 - 組織的安全管理措置
・個人情報の取扱いに関する責任者を設置するとともに、個人データを取り扱う従業者及び当該従業者が取り扱う個人データの範囲を明確化しています。
・個人データの取扱状況については内部監査による監査を実施し、その適正化に努める運用を行っているほか、個人データの漏洩・盗難・紛失等の事件・事故が発生もしくは発生したと思われる場合の報告連絡体制を整備・運用しております。 - 人的安全管理措置
従業者に定期的に研修を実施するとともに秘密保持に関する事項を就業規則に規定しています。 - 物理的安全管理措置
個人データを取り扱う機器、電子媒体及び書類等の盗難又は紛失等を防止するための措置を講じています。
また個人データを取り扱う機器、電子媒体及び書類を廃棄する場合、個人データの復元ができないよう措置を実施しています。 - 技術的安全管理措置
アクセス制御については、ユーザーID に付与するアクセス権により、個人情報データベース等を取り扱う情報システムを使用できる従業者を限定し、個人情報データベース等へアクセスする者の識別と認証を実施しています。
外部からの不正アクセス又は不正ソフトウェアから保護する仕組みを導入しています。
個人データを扱う情報システムの安全性を定期的に確認し、情報システムの使用に伴う漏えいを防止する措置を実施しています。 - 外的環境の把握
以下の国における個人情報の保護に関する制度を把握した上で安全管理措置を実施しています。
ハワイ・オーストラリア・マレーシア・フィリピン
※上記記載は2024年4月現在のものです。
- 個人情報の取扱いに係る規定の整備
- 【7】利用目的の通知、個人情報の開示及び第三者提供の記録の開示(以下併せて「情報開示」といいます)のご請求手続き
-
当社は、ご本人様からのお申し出により、以下の方法で情報開示のご請求に対応いたします。
- (1) 情報開示にあたっては、下記問い合わせ窓口にその旨ご連絡を頂き、当社から送付する所定の申込用紙(個人情報開示請求書)に必要事項をご記入の上、住民票や免許証など公的な証明の写しを添付の上、お申込み下さい。
- (2) 情報開示にあたっては、手数料として1,000円を申し受けます。開示請求書ご送付の際に、1,000円相当額の郵便小為替をご同封下さい。
- (3) 開示請求書を受領した後、ご回答させて頂くまでに少なくとも2週間のお時間を頂きます。ご回答は書面にてご本人様のご住所に郵送させて頂きます。
- (4) 当社の業務の遂行上支障があると判断される場合等においては、情報開示を制限させて頂くことがございます。
- 【8】個人情報の訂正、追加又は削除(以下「訂正等」といいます)・利用停止及び第三者提供の停止のご請求手続き
-
当社は、ご本人様からのお申し出により、以下の方法で個人情報の訂正等請求、利用停止請求、第三者提供の停止請求に対応いたします。
- (1) 個人情報の訂正等・利用停止・第三者提供の停止のご請求にあたっては、下記問い合わせ窓口にその旨ご連絡を頂き、ご本人様確認をさせて頂いた上で受け付けます。ご本人様確認ができない場合はご請求をお断りする場合がございます。
- (2) 当社の業務の遂行上支障があると判断される場合等においては、法令に反しない範囲で個人情報の訂正等・利用停止・第三者提供の停止を制限させて頂く場合がございます。
- お問合せ窓口
- 〒150-0043 東京都渋谷区道玄坂1-10-8 渋谷道玄坂東急ビル
東急リゾート株式会社 お客様相談室 - 受付時間:9:30~18:00(毎週火曜、水曜定休)
- 電話番号:03-6455-3077 E-mail: info@tokyu-resort.co.jp
※ 本記載事項は、改訂・変更する場合があります。重要な改訂・変更は当社Webサイトにて通知いたします。
セキュリティポリシー
セキュリティポリシー
東急リゾート株式会社(以下「当社」という)は、当社のWebサイト http://www.tokyu-resort.co.jp を利用されるお客様の個人情報を重要であると認識し、その取り扱いにつきましては細心の注意を払っております。
下記に示す【東急リゾートセキュリティポリシー】は、当社のWebサイトをご利用になるうえでの、この個人情報についての当社の考え方、取扱いについて説明したものです。
当社のWebサイトをご利用いただく場合、このセキュリティポリシーをお読みください。
当社のWebサイトをご利用いただいた場合、このセキュリティポリシーについて同意されたものとさせていただきます。
- 【東急リゾートセキュリティポリシー】
-
- 【SSLについて】
-
当社のWebサイトは、お客様の個人情報を保護するために「SSL」に対応しています。お客様が入力される名前や住所あるいは電話番号などの個人情報が自動的に暗号化されて送受信されるため、万が一、送信データが第三者に傍受された場合でも、内容が盗み取られる心配はございません。
- 【Cookieについて】
-
当社のWebサイトでは閲覧されるお客様へのサービスの提供、トラフィック情報の検証の為、お客様のコンピューターにクッキー(Cookie)と呼ぶ情報を送る場合がございます。この情報はお客様のコンピューターのハードディスクまたはメモリーに保存されます。クッキーの情報は当社のWebサイトのマーケティング分析や各種サービス提供に限定して使用いたしますので、お客様のセキュリティを侵害することはございません。尚、お客様がお使いのブラウザでの設定を変更することにより、Cookieの機能を無効にすることができますが、Cookieの機能を無効にした場合、東急リゾートのWebサイト、またサービスの全部または一部がご利用いただけなくなることがございます。
- 【Java scriptについて】
-
当社のWebサイトでは、お客様により便利にサイトを利用していただけるよう、Java scriptを使用しております。Java scriptが使用になれない環境や、Java scriptを無効にして使用されている場合には、ページが予期せぬ表示をする場合がございます。
- 【ログファイルについて】
-
当社のWebサイトでは、ログファイルからIPアドレス、ブラウザの種類、参照URL、時間などの情報を収集しています。ログファイルから収集した情報に関しては、当社のWebサイトの傾向の分析、サイトの管理、ユーザーの動向の探知などに使用します。また、ログファイルから収集した情報は、個人情報に反映されることはございません。
- 【画像ファイルについて】
-
当社のWebサイトでは、アクセスしたユーザー数の集計や、ご利用状況の調査のために画像ファイル(ClearGif)を使用する場合がございます。画像ファイルを使用して収集された情報は、統計情報として利用する場合がございますが、その際には個人を特定する情報は一切含みません。
- 【リンクについて】
-
当社のWebサイトでは、他のサイトへのリンクを含んでいます。当社では他のサイトにおける個人情報の保護などに関する内容については、責任を負いません。
- 【セキュリティポリシーの改訂】
-
当社は、このセキュリティポリシーの内容を改訂する場合がございます。また、内容に重要な変更があった場合は当社のWebサイト上でお客様に通知します。
この物件へのお問い合わせ(管理NO:50561)
| (一社)不動産流通経営協会会員・(公社)首都圏不動産公正取引協議会加盟・国土交通大臣(8)第4195号 |
蓼科センター
無料通話0120-660-573
- 営業時間:
- 9時30分~18時00分
- 定休日:
- 毎週火曜、水曜

























